La qualité jusque dans les détails -
Panneaux en aluminium de batimet
En tant que l'un des principaux fournisseurs de systèmes de fenêtres et de façades en bois-aluminium de haute qualité, nous nous sentons responsables de la qualité jusque dans les moindres détails. C'est pourquoi
nous proposons également des panneaux en aluminium sur mesure qui s'adaptent à votre projet. Télécharger la liste de prix
Nous sommes votre expert en matière de façades bois-aluminium. Avec nos produits de haute qualité, nous allons jusque dans les détails - chez batimet, vous obtenez tout ce dont vous avez besoin pour la réalisation votre projet de fenêtres et de façades.
Avez-vous des questions ou besoin d'un devis pour connaître nos prix ? Nous sommes à votre disposition pour répondre à toutes vos questions !
batimet GmbH
Enderstrasse 90
01277 Dresde / Allemagne
Prenez contact !

Qualité supérieure
de l'expert
Du sur mesure
pour votre projet
Fabriqué en
Allemagne
Meilleur rapport
qualité/prix
Livraison fiable
et ponctuelle
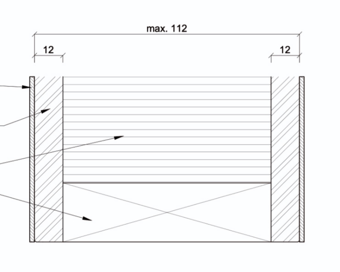
batimet TA35 PA 5730000
| Système de profilés: | batimet panneaux en aluminium TA35 PA, EN AW-5005 (AlMg 1 F/G 15) |
| Unités de livraison: | Panneaux sur mesure pour une installation dans les murs, les façades et les éléments de fenêtres. |
| Finition Aluminium RAL: | Standard RAL, RAL mat, RAL structuré, tout QUALICOAT, toutes les autres teintes RAL disponibles sur demande. |
| Finition aluminium anodisé: | E6/ EV1, E6/ EV3, C31, C32, C33, C34, C35 QUALANOD, toutes les autres couleurs ANODISÉ spéciales disponibles sur demande. |
| Finition aluminium spéciale: | HWF hautement résistant aux intempéries, SEAPROOF adapté à l'eau de mer, NCS et teintes spéciales disponibles sur demande. |
| Exécution: | Extérieure : aluminium 2 mm, revêtement selon RAL |
| Noyau isolant : mousse rigide PU, λᴅ = 0,028 W/(mK) selon DIN EN 13165, λᴮ = 0,029 W/(mK) selon DIN 4108-4, RG selon EN 1602 env. 33 kg/m | |
| Intérieure : aluminium 2 mm, revêtement selon RAL | |
| Bordure : film PP ou joint silicone | |
| Prix: | Le prix s'applique aux panneaux prélaqués finis |
| Livraison: | Les prix s'entendent départ usine, emballage et livraison en supplément. |
| Remarques: | Prix hors accessoires. |
batimet TA35 PA 5740000
| Système de profilés: | batimet panneaux en aluminium TA35 PA, EN AW-5005 (AlMg 1 F/G 15) |
| Unités de livraison: | Panneaux sur mesure pour une installation dans les murs, les façades et les éléments de fenêtres. |
| Finition Aluminium RAL: | Standard RAL, RAL mat, RAL structuré, tout QUALICOAT, toutes les autres teintes RAL disponibles sur demande. |
| Finition aluminium anodisé: | E6/ EV1, E6/ EV3, C31, C32, C33, C34, C35 QUALANOD, toutes les autres couleurs ANODISÉ spéciales disponibles sur demande. |
| Finition aluminium spéciale: | HWF hautement résistant aux intempéries, SEAPROOF adapté à l'eau de mer, NCS et teintes spéciales disponibles sur demande. |
| Exécution: | Extérieure : aluminium 2 mm, revêtement selon RAL |
| Isolation en fibres minérales, λᴅ = 0,034 W/(mK) selon DIN EN 13162, λᴮ = 0,035 W/(mK) selon DIN 4108-4, RG selon EN 1602 env. 70 kg/m³ | |
| Intérieure : aluminium 2 mm, revêtement selon RAL | |
| Finition des bords : bande de chant avec film PP ou joint silicone | |
| Prix: | Le prix s'applique aux panneaux prélaqués finis |
| Livraison: | Les prix s'entendent départ usine, emballage et livraison en supplément. |
| Remarques: | Prix hors accessoires. |
Plus de produits batimet pour votre projet
Vous avez des questions sur les systèmes batimet ?
Nous sommes là pour répondre à vos questions techniques sur nos systèmes de fenêtres et de façades.N'hésitez pas à nous contacter ! J'ai des questions !





